Talboden + Spühlirain Köniz-Schliern

Das knapp 1.7 ha grosse Areal «Talbodenstrasse und Spühlirain» liegt im Norden des Ortsteils Schliern der Gemeinde Köniz. Auf dem Areal besteht heute eine Wohnüberbauung aus den 60er-Jahren. Die in die Jahre gekommenen Bauten weisen einen erheblichen Sanierungs­­bedarf auf. Die Bernische Pensionskasse als Grund­eigentümerin hat sich entschieden, säm­tliche Hochbauten auf dem Areal zu­rückzu­bauen und durch eine zeitge­mässe, attraktive Wohnüberbauung von hoher Dichte mit Mietwohnungen im mittleren Preissegment zu ersetzen.

Der Spühlirain ist heute durch die Verknüpfung mit dem Landschaftsraum stark geprägt. Der Vorschlag von GWJ will die Qualitäten vom Ort stärken, Defizite bereinigen und eine neue Identität am Spühlirain schaffen, welche sich als Begegnungsort und Treffpunkt für die Bewohnerinnen und Bewohner anbietet.

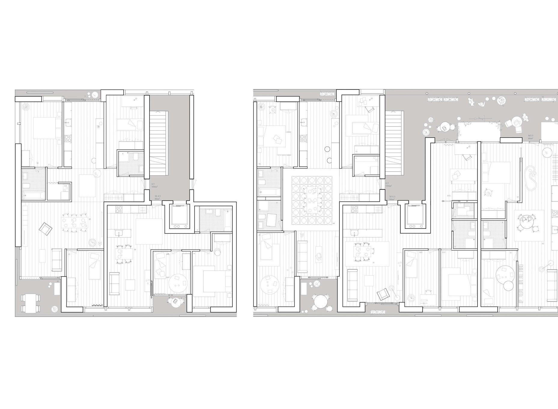
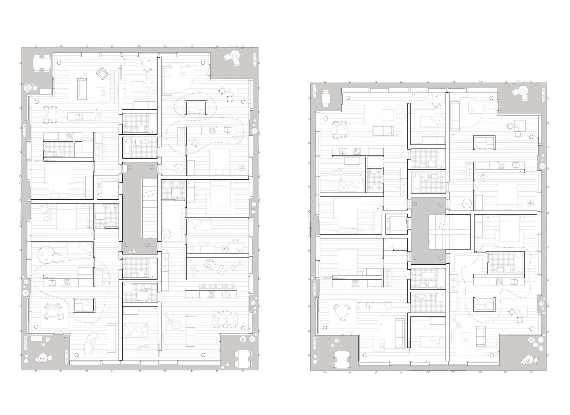
Vier vertikale Punktbauten im Hang schlagen den Dialog und die Adressierung im Zwi­schenraum vor dem Wald vor. Die Landschafts­inseln für die Nachbarschaft, die Waldwege und das Quartier werden vernetzt. Der Park zieht sich vom Waldrand bis zum Spühlirain. Im Süden werden drei Längsbauten am Spühlirain vorgeschlagen, welche eine neue Adressbildung mit Aufenthaltsqualitäten und den Austausch durch Gemeinschaftsnutzungen bringen. Ebenso geniesst das aktivierte Erd­geschoss eine Ausstrahlung auf den Aussen­raum und belebt diesen. Die sieben Volumen als Gesamtheit schaffen eine neue Dichte. Sie verstehen sich als Ganzes und reagieren gleich­zeitig spezifisch auf die Nachbargebäude, beleben den Ort, vernetzen und werten ihn auf. 

 

WettbewerbAntonia Immenkamp
Christian Lasser
Donat Senn
AuftraggeberBernische Pensionskasse
ArchitekturGWJ Architektur
KooperationExtra Landschaft
WAM Planer und Ing.
Play-Time
VerfahrenStudienauftrag
SIA 41616'570 m2 Arealfläche
GF 31'400 m2
GV 95'600 m3
Termine2018 / 2019