Schönmattweg Belp

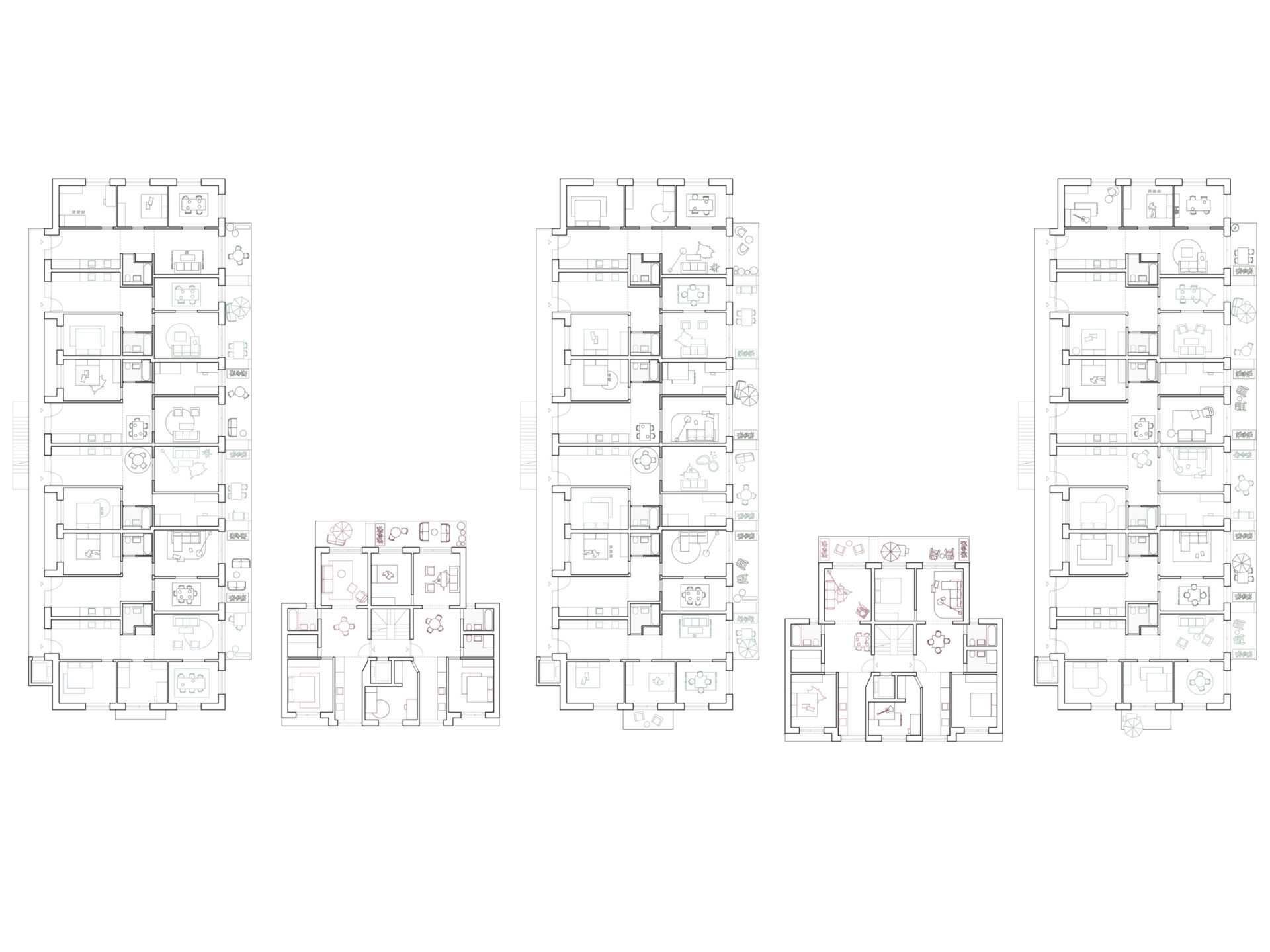
SchönMatt entwickelt sich aus dem, was bereits vorhanden ist. Die bestehenden Gebäude bleiben in ihrer massiven Bauweise erhalten und bilden das konstruktive Rückgrat der Siedlung. Aufstockungen in Holzelementbauweise und zwei punktuelle Neubauten am Schönmattweg ergänzen den Bestand gezielt – die Struktur bleibt lesbar, die Eingriffe präzise. Die Erweiterung der Eingangsbereiche und die neuen Laubengänge als unabhängige Stahlstrukturen übernehmen Erschliessung, Aussteifung und Leitungsführung. Das konstruktive System ist auf Langlebigkeit und niedrige Umweltwirkungen ausgerichtet.

Zwischen den Gebäuden entstehen mit dem Ahorn-Hof und dem Hagenbuchen-Hof zwei ruhige Innenräume, die das Herz der Überbauung bilden. Der Bestand der Grossbäume bleibt erhalten und wird durch artenreiche Wiesen, Wildstauden und Sträucher ergänzt. Entlang der Gürbe bleibt der dichte Uferbewuchs gewahrt; schmale Wege führen zum Wasser, ohne den Naturraum zu stören. Minimale Versiegelung, bepflanzte Mulden und Retentionsflächen prägen den sparsamen Umgang mit Boden und Wasser.
 

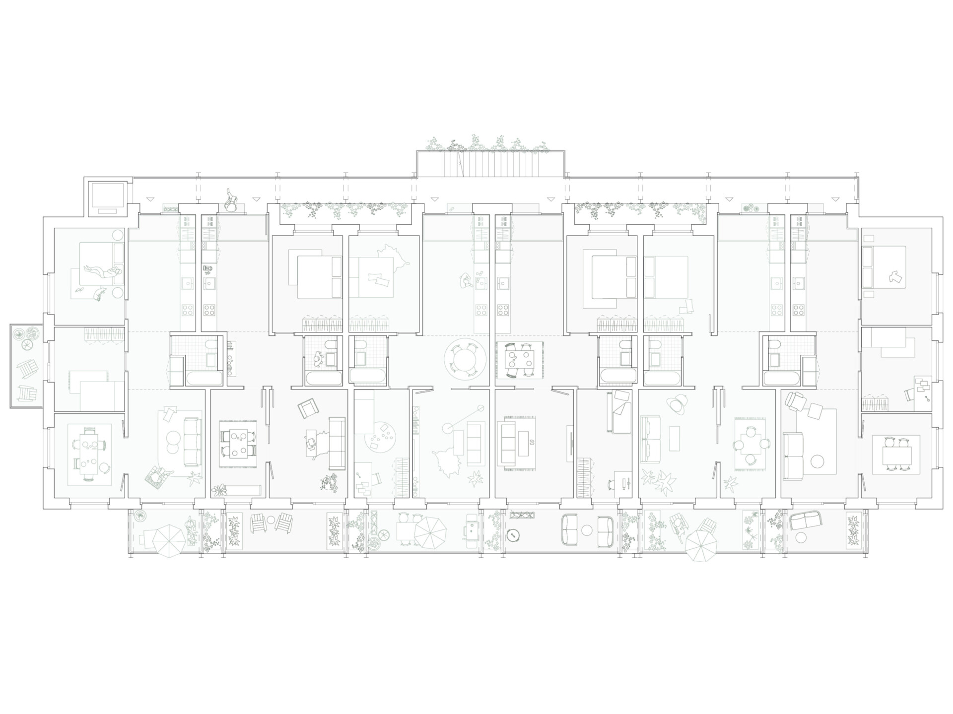
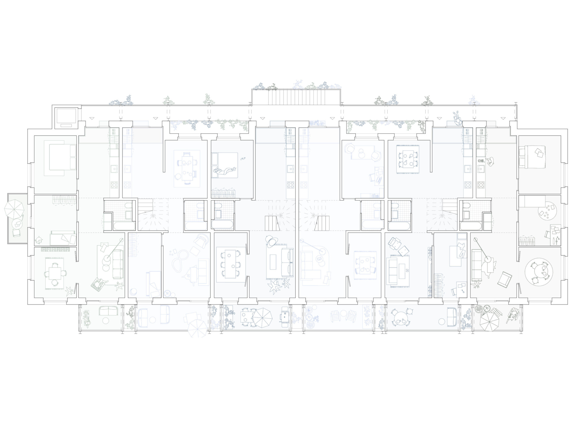
Die Grundrisse folgen dem Kammerprinzip: Gleichwertige, gut möblierbare Räume bilden ein robustes Gerüst, das sich an unterschiedliche Lebenssituationen anpassen lässt. Im Erdgeschoss verankern Wohnungen mit direktem Aussenbezug das Wohnen in den Höfen, die Regelgeschosse bieten kompakte 2½- bis 3½-Zimmerwohnungen. In der Aufstockungen differenziert sich die Wohnform als Maisonette.

GesamtleistungswettbewerbJulien Brügger 
Marta Czarnecka
Gioia Dridi
Tania García
Stefan Hochhofer
Antonia Immenkamp
Anna Müller
Donat Senn
AuftraggeberPensionskasse Schaffhausen
Architektur
Gesamtleister
GWJ Architektur
Frutiger 
KooperationORT AG für Landschaft
B+S Ingenieure
Toneatti Engineering
Wälchli Architekten Partner
Gartenmann Engineering
ing. Büro Riesen
Play-Time
VerfahrenGesamtleistungswettbewerb 2025, 1. Rang
SIA 416GF 9‘570 m2
GV 26‘330 m3
70Wohnungen
Die Höfe sind Orte des Alltags – informell, unaufgeregt, aber immer präsent: Treffpunkt im Vorbeigehen, ein ruhiger Aufenthaltsort im Schatten eines Baums, ein geschützter Raum für Kinder, um nah an der Wohnung spielen zu können.
Die beiden Neubauten am Schönmattweg entstehen als eigenständige Betonkonstruktionen und fügen sich städtebaulich wie konstruktiv in das Gesamtgefüge ein. Neue Laubengänge und Eingangssituationen übernehmen die Erschliessung. Das gesamte konstruktive System ist auf Langlebigkeit, Anpassungsfähigkeit und niedrige Umweltwirkungen ausgerichtet.
Grundrisse folgen dem Kammerprinzip: gleichwertige, gut möblierbare Räume bilden ein robustes Gerüst, das flexibel an unterschiedliche Lebenssituationen angepasst werden kann. Wohnungen lassen sich öffnen, zusammenschliessen oder abtrennen, ohne dass Eingriffe in die Tragstruktur oder Leitungen notwendig sind, wodurch eine langfristige soziale Durchmischung und Anpassungsfähigkeit gefördert wird.