Saurer WerkZwei Arbon

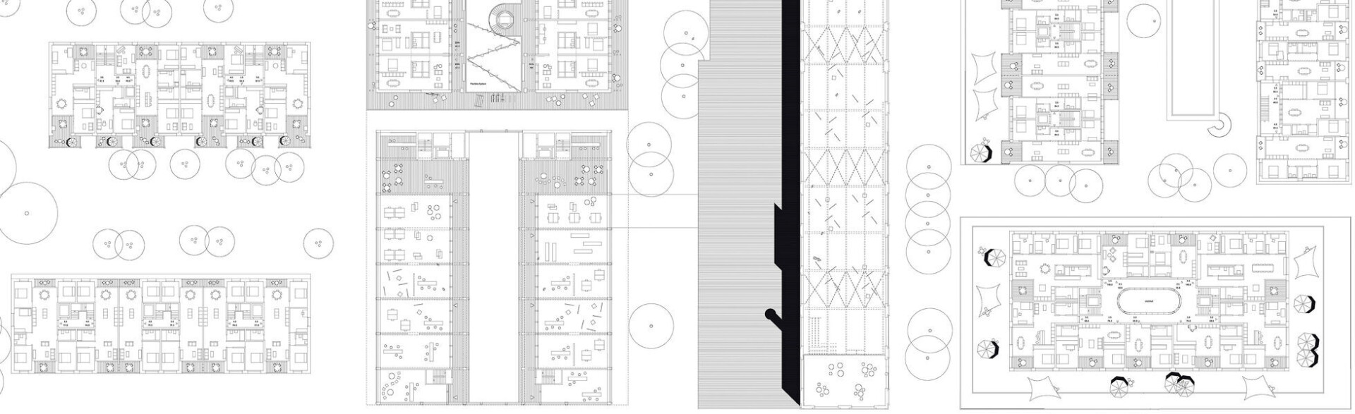
Das Saurer WerkZwei Areal in Arbon zeich­net sich durch seine industrielle Vergangen­heit aus. Geprägt vom einzigartigen Raumgerüst, beherbergt das heute noch teilweise produktive Areal unterschiedliche Nutzungen. Die Geschichte der Industri­alisierung ist an diesem Ort eingeschrieben und bringt eine ganz besondere Atmos­phäre hervor, die es im Transformations­prozess zu wahren gilt. Aus diesem Grund besinnt sich der Entwurf auf die ursprüngliche Raumfigur, verwebt die unterschiedlichen Gebäude, Typologien, Frei- und Zwischen­räume, Strassen, Gassen und Wege eng miteinander. Innerhalb dieses Raumkon­tinuums schaffen wir einen Stadt­baustein, der zentrale Stadtfunktionen wie klein­räumiges, produktives Gewerbe, Kultur und Dienstleistungen, Bildung, Gemeinschaft und Nahversorgung ermöglicht.

Der Erhalt der noch vorhandenen Industriebauten wie der Webmaschinen­halle ist essentiell, um die Identität des Ortes zu wahren. Auch die Verwebung von Atelier­wohnungen und Werkstätten in der Zentral­lagerhalle dehnen das Nutzungs­spektrum aus. Dabei treten vorhandene und neue Gebäude in Dialog, vermitteln ein urbanes Gefühl, machen neugierig und fordern zum Aneignen auf.

Die Kombination aus Vielfalt und Harmonie der Typologien und Grundrisse findet sich auch auf der sozialen Ebene wieder. Auf dem WerkZwei Areal wohnen, arbeiten und verweilen Menschen aus ganz verschie­denen Milieus, mit unter­schiedlichen Be­dürf­­nissen und Ansprüchen. Aus diesem Grund wird mit den Akteuren nach einer gemeinsamen Basis gesucht.

Vielfältige Frei- und Zwischenräume geben den Takt des Areals vor. Entsiegelte Flächen und Bäume sorgen für ein angenehmes Raumklima und knüpfen an die angren­zenden Stadtteile Arbon und Steinach an. Die Stadträume haben unterschiedliche Funktionen, Erdgeschoss­nutzungen, Stimmungen und räumliche Qualitäten im Einklang mit der typologischen und gesellschaftlichen Vielfalt. Der öffentliche Strassenraum wird von privaten Rückzugs­orten ergänzt, was unterschiedliche Nutzungen möglich macht. Die an­gren­zenden Gebäude­nutzungen und deren Schwelle -zwischen Innen und Aussen- sind spezifisch ausgebildet und tragen im Zu­sammenspiel mit dem Freiraum zur An­eignung und Belebung des Stadtraumes bei.

 

WettbewerbAitor Andueza García
Julien Brügger
Antonia Immenkamp
Christian Lasser
Natalia Michailidou
Michael Pscheor
Donat Senn
ProjektMaurizio Chirico
Nicolas Girardin
Bettina Gubler
Christian Lasser
Jan Palomo
AuftraggeberHRS Real Estate
ArchitekturGWJ Architektur
KooperationORT AG für Landschaft

 

 

VerfahrenTestplanung, 1. Rang 2021
Überarbeitung inkl. Gestaltungsplan 2021
SIA 416GF 111'440 m2
GV 320'730 m3
Weiteres598 Wohnungen
29'000 m2 Arealfläche
21'000 m2 Gewerbefläche
66'590 m2 Wohnen