Anderes Wohnen Zollikofen

Die Interessengemeinschaft «Das Andere Wohnen» ist eine gemeinnützige Wohnbau­genossenschaft von Menschen über 50 Jahre, die ihren dritten Lebensabschnitt aktiv gestalten wollen.

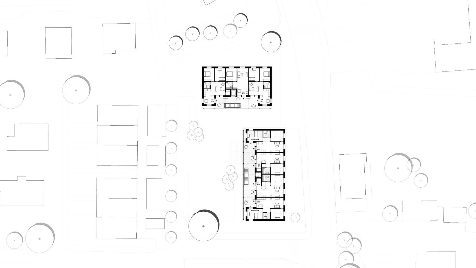
Sie möchte eine Wohnform mit einem guten Gleichgewicht zwischen privat genutzten Wohnungen und gemeinsam benutzten Aussen- und Innenräumen realisieren und so die Ge­meinschaft mit baulichen Ausge­stal­tungen gezielt fördern. Beziehungen pflegen, regel­mässige Bewegung, viel Frischluft, Licht und Sicherheit tragen massgeblich zum Wohl­befinden bei.

Viele Menschen halten sich rund 90 Prozent ihrer Zeit in Innenräumen auf. Umso wich­tiger für das Wohlbefinden ist ein gesundes Innenraumklima. Mit einem konsequent in Holz und emissionsfreien Materialien durch­dachten Bau werden wir dieser Tatsache gerecht.

Mit der Reduktion von konditionierten Flächen, der Möglichkeit von Mehrfach­nutzungen wie zB. der Lauben, Schalt­zimmer und Mehrzweck­räume und Mini­mierung der Untergeschoss­flächen schaffen wir kompakte Volumen mit einer effizien­ten Erschliessung. Durch die Balance von Suffizienz, Effizienz und Konsistenz sparen wir Ressourcen, was sich ökologisch nach­haltig, wie auch wirtschaftlich positiv auswirkt.

 

WettbewerbAitor Andueza García
Eva Herren
Christian Lasser
AuftraggeberPrivate Genossenschaft
    "Anders Wohnen"
ArchitekturGWJ Architektur
VerfahrenProjektwettbewerb nach Präqualifikation 2020
SIA 416GF 1'440 m2
GV 5'190 m3