Schulhaus Walka Zermatt

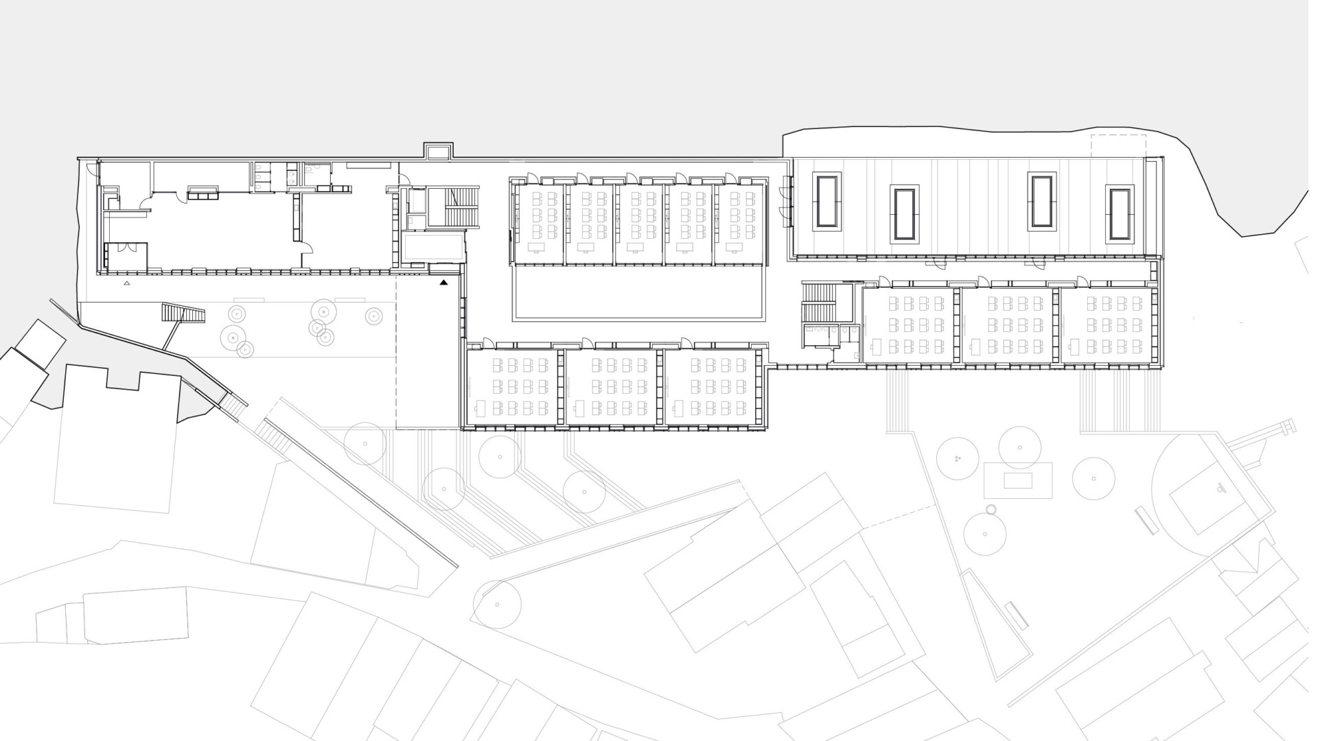
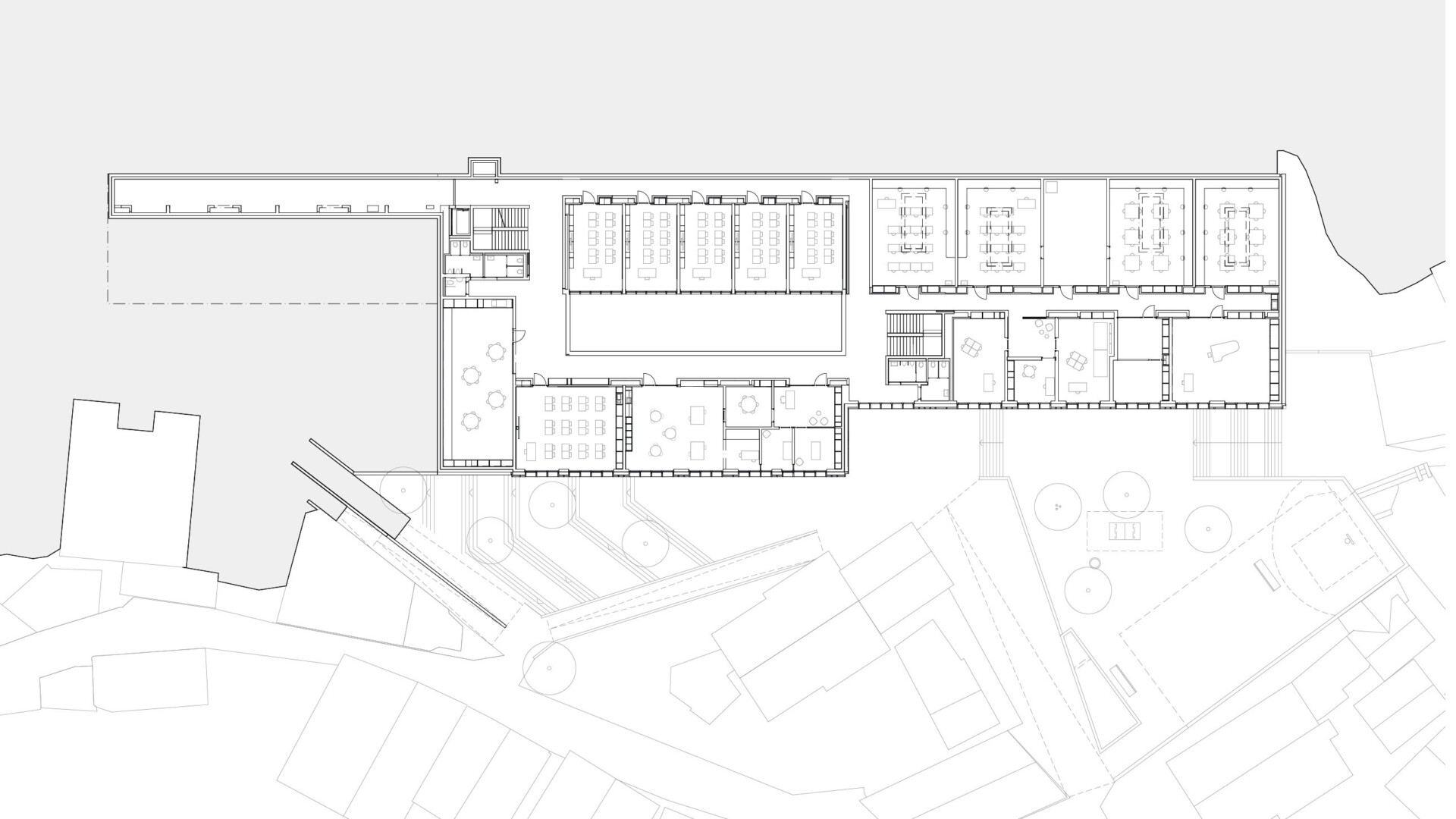
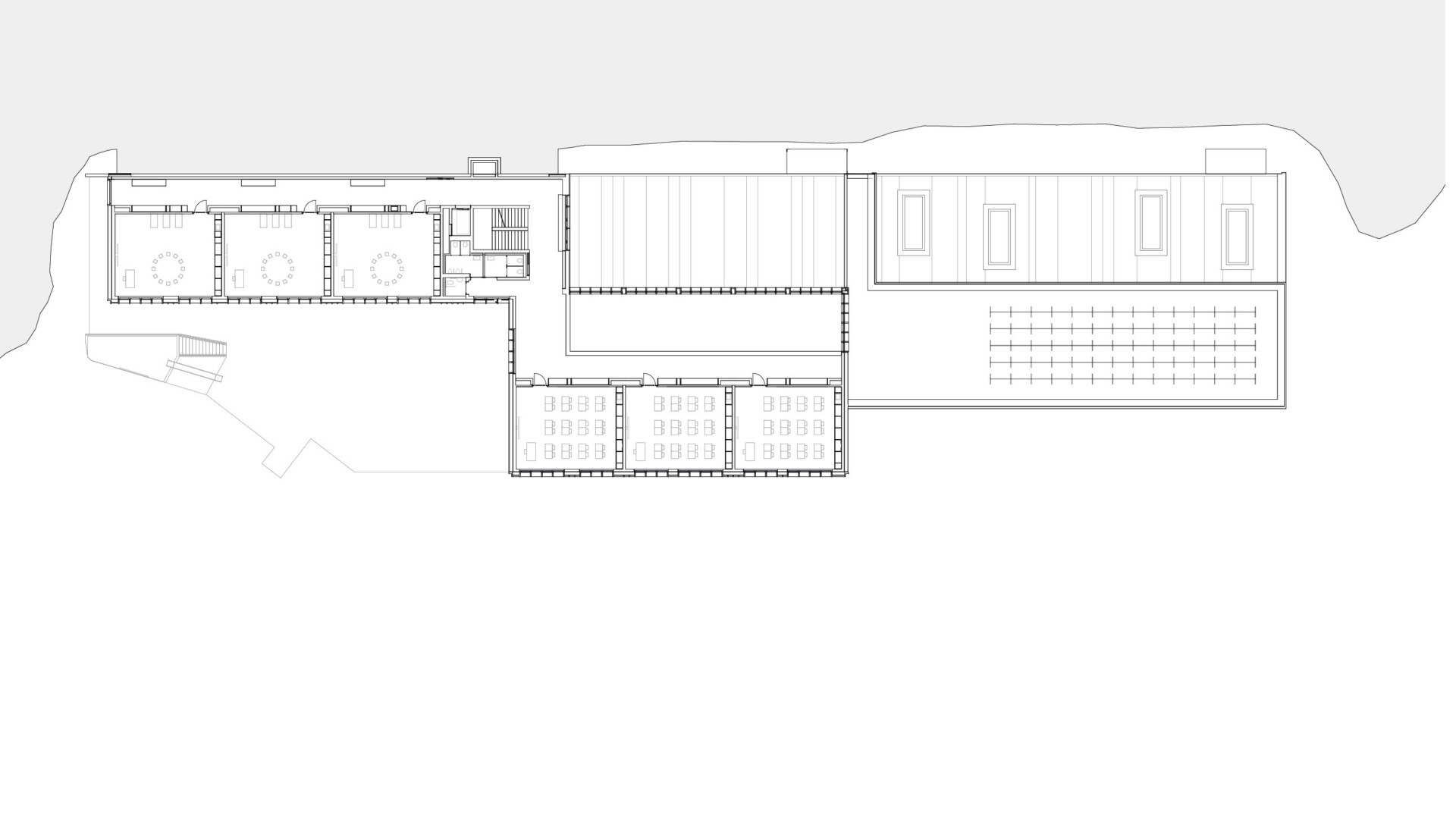
Die Gestalt von «Tabula rasa», ist eine Anlehnung an den Bestand. Die vorhande­nen Qualitäten, wie die Gliederung in drei Körper, die Staffelung des Volumens und die rück­wärtigen Räume, werden aufge­nommen und gestärkt. So erhalten die rückwärtigen Räume eine Aufenthalts­qualität und wollen entdeckt werden.

Auf den gebauten Ort reagiert das Projekt, indem sich das Volumen in der Höhe zurückhält. Das Gebäude wird an den Hang gestellt und interagiert mit der Landschaft. Das Volumen ist als Erweiterung des Hanges zu lesen, welches die Wiese über das Dach laufen lässt. So kann die Schnittstelle zum Fels klar gelöst werden und es entstehen hangseitig neue Räume. Das Projekt hat einen respektvollen Umgang mit der na­türlichen wie auch mit der gebauten Umgebung, fügt sich in den Ort ein, schafft neue und stärkt vorhandene Qualitäten. Das Gedächtnis des Ortes, die heutige Nutzung und die Räumlichkeit des Platzes werden als wichtiger Bestandteil und Leitidee des Projektes verfolgt.

 

Trotz der knapp bemessenen Aussen­räume erhält die Schule eine allseitig attraktive Umgebung. Vom Dorf her führen drei Wege zwischen scheinbar zufällig gestreuten Häusern zu den zwei Eingängen des Schulgebäudes.

WettbewerbJulien Brügger
Antonia Immenkamp
Christian Lasser
Donat Senn
PlanungGregory Benoit
Julien Brügger
Stefan Burkhardt
Maurizio Chirico
Sebastian Graf
Christina Haas
Fabienne Hodler
Nicole Hofer
Daniel Iseli
Leonie Lucy
Daniel Meyer
Noé Müller
Donat Senn
Noah Uehlinger
Nicole Ulmi
Leander Walther
AuftraggeberEWG Zermatt
Architektur/GesamtleitungGWJ Architektur
KooperationMLS Architekten
Labag
Eicher + Pauli
LAMI
Extra Landschaft
Visu
Fotografie
Play-Time
Susanne Goldschmid
Alexander Gempeler
VerfahrenOffener Wettbewerb
2016, 1. Rang
SIA 416GF 8'400 m2
GV 35'800 m3
TermineFrühling 2021 Baubeginn
Frühling 2024 Bezug erste Etappe