Forschungs- und Ausbildungszentrum Medizin, Uni Bern

Der Neubau des Forschungs- und Ausbildungszentrum Medizin versteht sich als weiterer Baustein im Inselareal und bildet durch seine Lage eine klare Eingangsgeste zum Areal. Durch das Abknicken der Fassade springt es gegenüber dem Theodor Kocher Haus zurück und schafft so eine Vorzone zur Adressbildung.

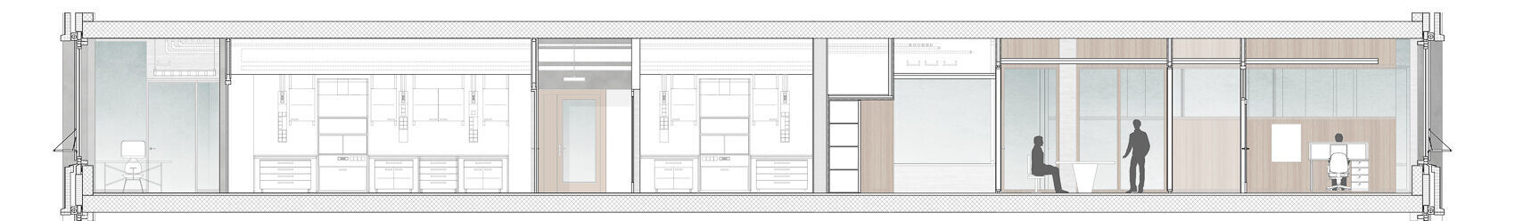
Die offensichtliche Zonierung im Innern ist die Grundlage für eine hohe Flexibilität und Veränderbarkeit. Die Büroschicht mit der öffentlichen Treppe bildet die lebendige Fassade zur Strasse. Dahinter schliessen effizient und einfach strukturiert der Mittelbund und die zum Pocket-Park orientierte Laborschicht mit zwei kompakten Erschliessungskernen an.

Die Geschosse folgen einem strengen Ausbauraster und einer klaren Strukturlogik. Mit Ausnahme von den Kernen handelt es sich bei den vertikal tragenden Elementen um Punktträger. So kann eine hohe Wandelbarkeit garantiert werden. In Gebäudeschichten, modular und zerlegbar denken ist ein zentraler Aspekt, um einerseits den unterschiedlichen Lebensdauern der Bauteile gerecht zu werden und andererseits das Gebäude bereits in der Erstellung auf einen nachhaltigen Kreislauf vorzubereiten. Die Systemtrennung wird im Sinne der Demontierbarkeit und der Reparatur- und Sanierungsmöglichkeiten konsequent umgesetzt.

WettbewerbJulien Brügger
Christian Lasser
Donat Senn
Janine Zimmerli
PlanungJulien Brügger
Maurizio Chirico
Christian Lasser
Meril Sabo
Donat Senn
AuftraggeberAGG des Kantons Bern
MandatGeneralplanung
Architektur/GesamtleitungGWJ Architektur 
IAAG Architekten
ASTOC Architects
Archipel Generalplanung
Kooperationdsp Ingenieure + Planer
Kissling + Zbinden
Eicher + Pauli
Bering
Teamplan
David Bosshard Landschaft
Gartenmann Engineering
Play-Time
VerfahrenProjektwettbewerb 2020
1. Rang
SIA 416GF oi 33'400 m2
GF ui 23'100 m2
GV oi 100'850 m3
GV ui 144'850 m3
Termine2021 Vorprojekt
2022 Bauprojekt
2024 Baustart
2030 Bezug