Kasernenareal Zürich

Nach dem Wegzug der Polizei soll das Bildungs­zentrum für Erwachsene die Militärkaserne in Zürich in eine neue Nutzungsära führen: die Schule soll in den alten Räumlichkeiten einen neuen Ort bekommen. Um einen ange­messenen Umgang mit dem denkmal­geschützten Ge­bäude zu erreichen, werden in einem Ver­haltens­kodex die Prinzipien festgelegt. Der Kodex regelt u.a. was integral erhalten wird, wo rückgebaut werden darf, welche Teile restauriert, wo Fehlendes nachgebaut oder neu interpretiert wird.

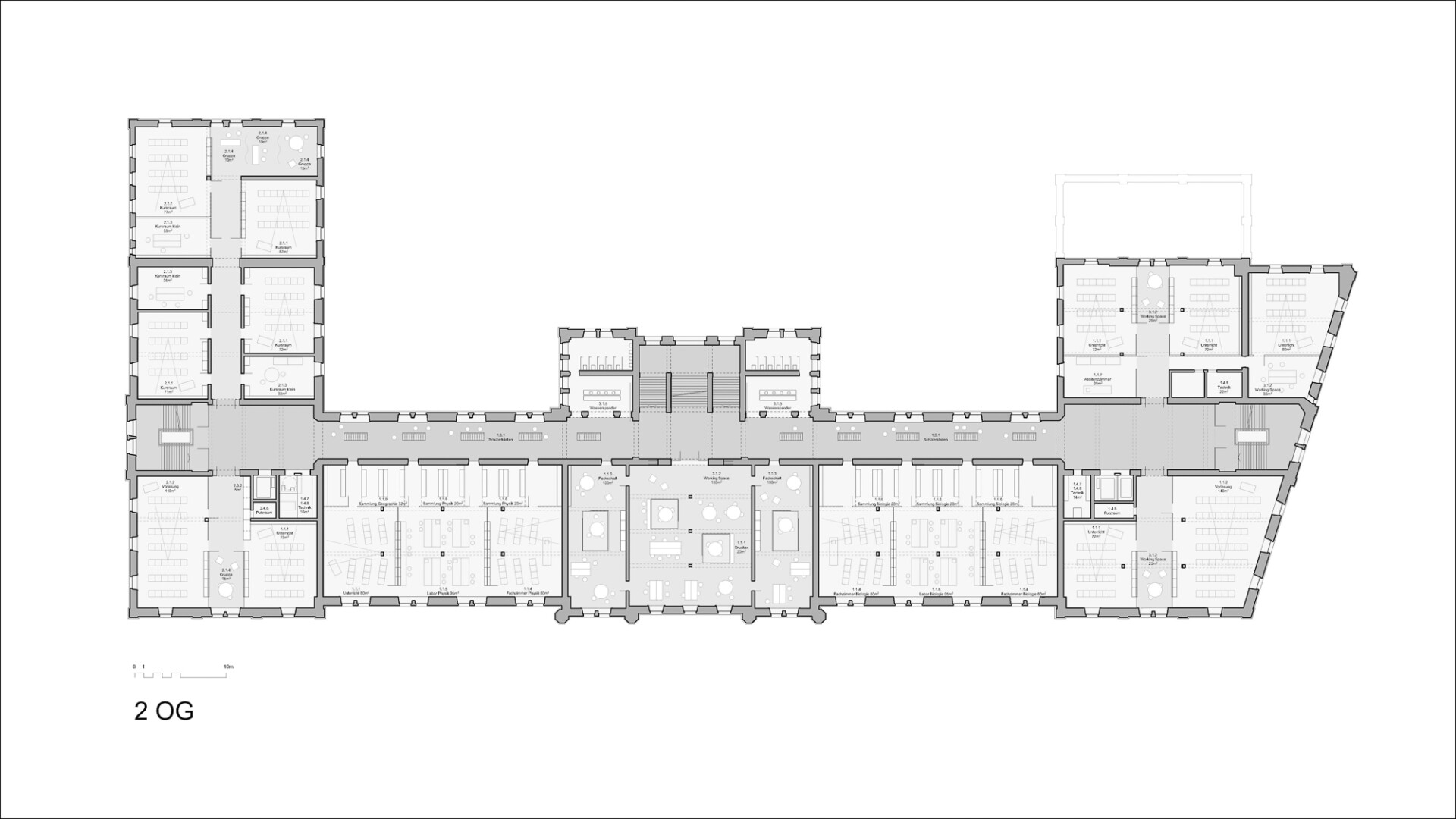
Das Projekt bildet das Raumprogramm mit entsprechender Kategorisierung und Orga­nisation gemäss den im Kodex definierten Zonen ab. Die historische räumliche Grund­struktur bildet die Basis für die Anordnung der in drei Zonen eingeteilten Schulräume. Dadurch entsteht ein Wechselspiel zwi­schen Raum­programm, Nutzungsverteilung und histo­rischer Raumstruktur.

Innerhalb der neuen Schule entstehen – ähnlich einer Stadt – öffentliche Bereiche oder Plätze, wo Austausch und ge­meinsames Lehren und Lernen in Form von Co-Working-Spaces statt­finden können. Die Lernlandschaft wird durch Orte gegliedert, an welchen erhöhter Austausch und Öffentlichkeit möglich wird. Der Fokus des Austausches liegt auf dem Mittelrisalit, mit der zentralen Treppe und dem angegliederten Hauptkorridor. Er ist das repräsentative Herz des Gebäudes, gemeinsamer Treffpunkt über alle Geschosse hinweg und er vermittelt zu­gleich zwischen Stadt und Schule.

Durch die zentrale Halle im Mittelrisalit wird das Gebäude verstärkt an das Stadtgeschehen angebunden und so ein belebter Ort zwischen Stadt, Gebäude und Schule geschaffen. Von der Haupthalle aus gelangt man in alle Teile des Gebäudes und direkt auf die Kasernenwiese. Die Halle wird somit nicht nur zum zentralen Ort im Gebäude, sondern ebenso im angrenzenden Stadtraum und dem gesamten Quartier.

 

WettbewerbAntonia Immenkamp
Christian Lasser
Donat Senn
Lukas von Arx
AuftraggeberBaudirektion Kanton Zürich
ArchitekturARGE GWJ Architektur
Co. Architekten
KooperationWAM Planer und Ing
Amstein + Walthert
extra Landschaft
Gartenmann Engineering
Play-Time
VerfahrenProjektwettbewerb 2019
2. Rang / 1. Preis
SIA 416GF 26'800 m2
GV 108'070 m3