Fällanden Haufland

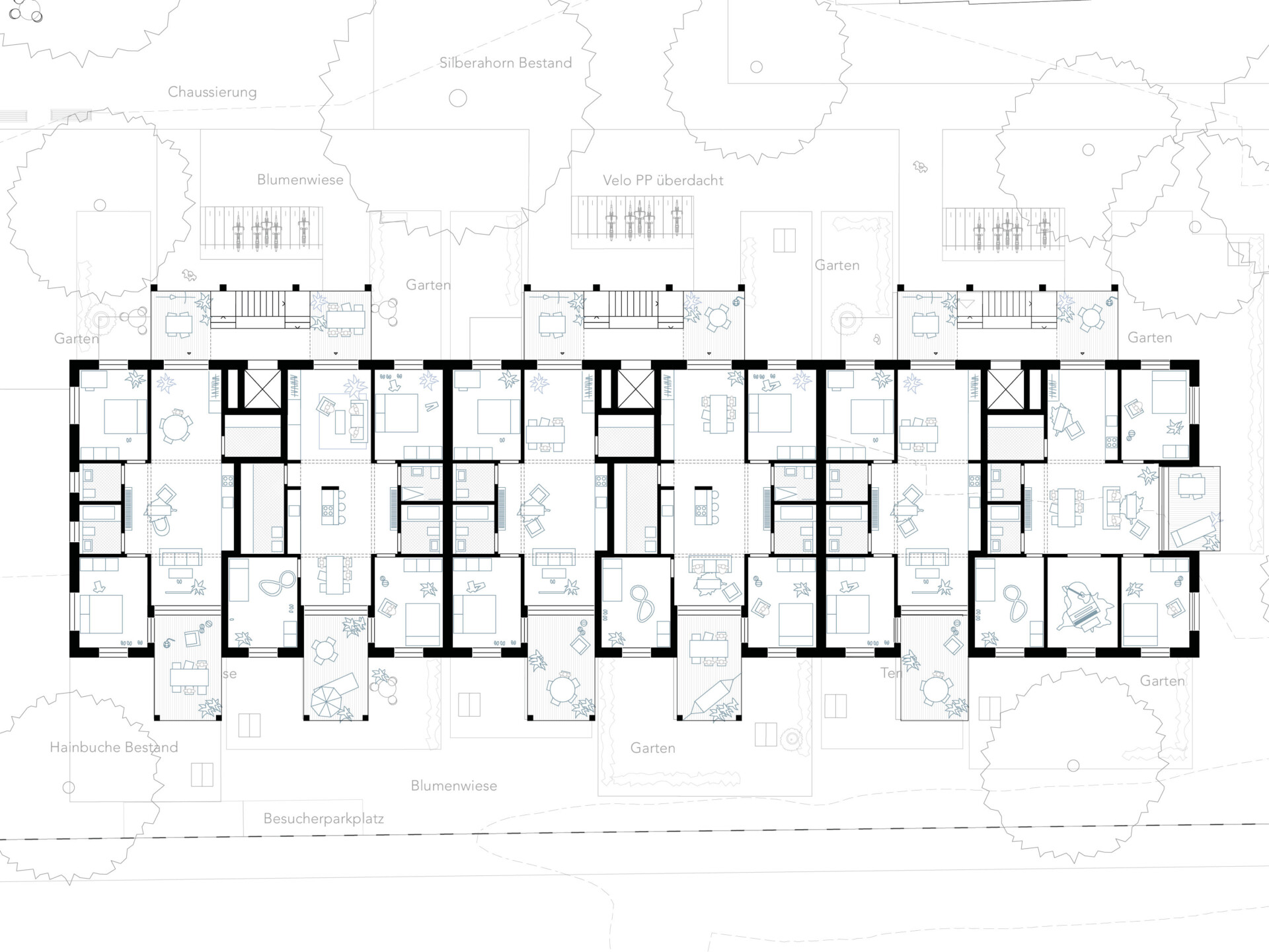
Die Entwurfsidee leitet sich aus der Lage des Areals zwischen den angrenzenden Strukturen der Wohnbauten und dem Übergang in den Landschaftraum ab.
Die Vielfalt der Umgebung und der Situationen, sowie die ländlich geprägte Realität des Ortes, werden übersetzt in ein ausdifferenziertes Mosaik von Räumen und Baufeldern, die in ihrem Zusammenspiel eine Gesamtheit bilden: Anschlussfähigkeit und Diversität als Leitmotiv.

Die Typologie der Räume entwickelt sich aus den benachbarten Räumen und dem Bekannten und Vorhandenen: Die Strassen, Wege, Plätze und der identitätsstiftende Baumbestand einerseits als Raum für das Quartier, die Innenwelten der Baufelder primär für die Bewohnerinnen und die Bewohner andererseits.

Das neue Wohnquartier schafft durch die architektonische Ausformulierung der Neubauten eine neue Identität und Ausdruck, jedoch basiert sich auf den Materialen und Proportionen der vorhanden dörflichen Strukturen und Bauten in Holz und deren Anordnung.

Die Schwellenräume und Masstäblichkeit in die Vertikalität werden durch die Balkonschichten und Stützen aus Holz mit unterschiedlichen Tiefen gestapelt und durch differenzierte Brüstungen gegliedert.

WettbewerbMarta Czarnecka
Karim Knobloch
Christian Lasser
Natalia Michailidou
Michael Pscheor 
Donat Senn        
Michael Wyss
AuftraggeberPensionskasse der Credit Suisse Group
KooperationGWJ Architektur 
Westpol Landschaft
Synaxis
Play-Time
VerfahrenProjektwettbewerb im Einladungsverfahren 2021
SIA 416GF  31‘887 m2
GV 94’229 m3
Der Quartierhof ist durch einen halböffentlichen und durchlässigen Charakter mit chaussierten Vorbereichen und leicht erhöhten Veranden geprägt.
Der Quartierweg verknüpft die vorhandenen, bereits etablierten Plätze Lindenweg, Quartiersplatz, Spielwäldchen und Ahornplatz.
Die Adressen, docken an das siedlungsinterne Rückgrat an und bilden Vorzonen für Veloräume und private Gärten bei Erdgeschosswohnungen.