Bürogebäude Ittigen

Die Entwicklung des Verwaltungsgebäudes verlief in mehreren Etappen: Der damalige Bauherr, der Schweizerische Bankverein, verlangte ein Konzept für ein Bürogebäude mit unterschiedlichen Arbeitsformen und differenzierten Nutzungen (Gruppenbüros, Direktion, Zellen). Ziel war es, eine Struktur zu schaffen, die in hohem Masse flexibel ist, um den unterschiedlichen Anforderungen eines Bankverwaltungszentrums gerecht zu werden.

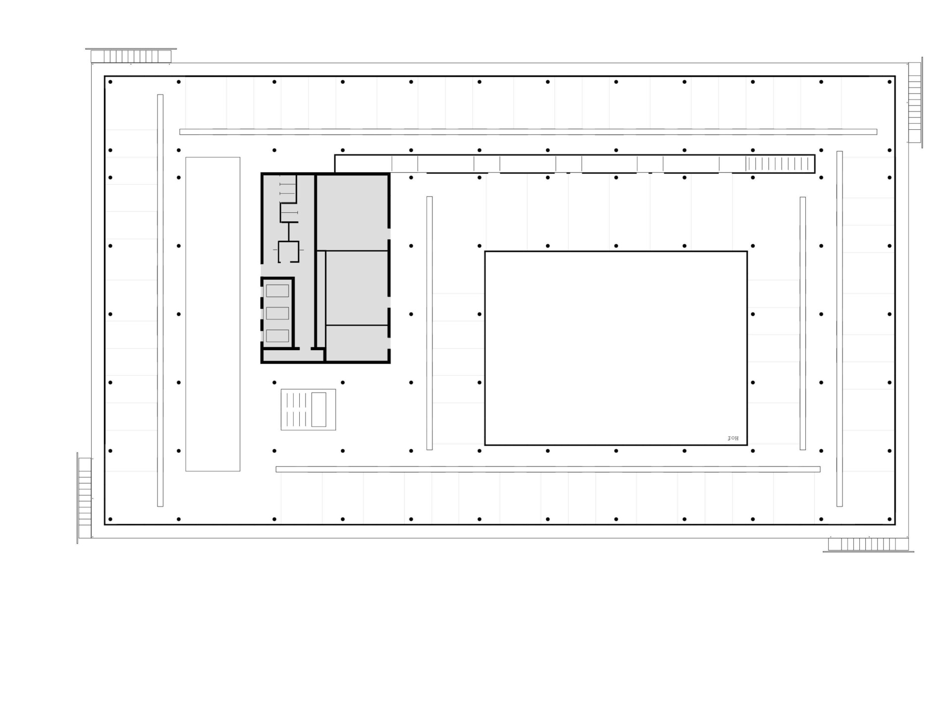
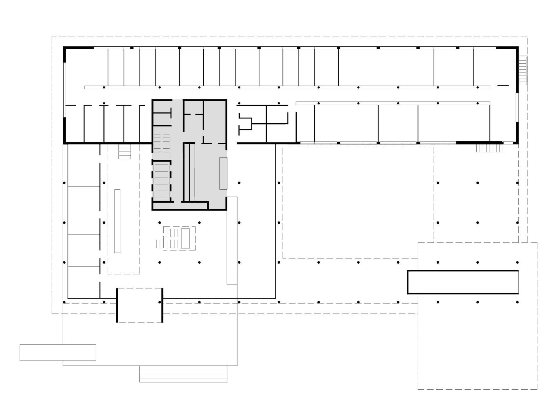
Die Entflechtung der unterschiedlichen Anforderungen innerhalb der Verwaltung führte GWJ Architektur zu einem Denken in Schichten: Horizontal geschichtete Ebenen bieten Raum für unterschiedliche Arbeitsformen und ermöglichen eine flexible Nutzung. Vertikale Schichten aus Kern, Halle, Hof und Lichtschlitz bilden besondere Erlebnisorte und gliedern die Arbeitsebenen.

Durch Umstrukturierungen innerhalb der Bank wurde das geplante Gebäude frei. Das nutzungsneutrale Konzept kam zum Tragen, als der Bund als Mieter seine Anforderungen in die Planung einbrachte. Das Schichtenkonzept wurde verfeinert. Die langen Schrankkörper mit Oberlichtern und die tiefe, lichtdurchflutete Fassadenschicht prägen den hellen und offenen Bürocharakter.

Die kurze Planungs- und Bauzeit bei gleichzeitig offenen Standard- und Layoutfragen führte zu einer konsequenten Systemtrennung. So wurden die Abhängigkeiten von Rohbau und Ausbau systematisch entflochten. Ein einfaches Betonskelett dient als primäre Basis. Alle weiteren Elemente wie die Gebäudehülle, die Haustechnik sowie sämtliche Böden (Doppelböden) und Trennwände wurden in modularer Bauweise Schicht für Schicht in das Gebäude eingebracht.

AuftraggeberPensionskasse der UBS AG
ArchitekturGWJ Architektur
KooperationEmch + Berger
Ascom Planel
Enerconom
Haug Metallbauplanung
Gartenmann Engineering
Moeri + Partner Landschaft
VerfahrenWettbewerb 1991
1. Rang
SIA 416GF 10'180 m2
GV 53'390 m3
Bauzeit1996 -1998
Das Fassaden- und Ausbaukonzept beinhaltet fein aufeinander abgestimmte Komponenten: Es weist einen effizienten Sonnenschutz und eine natürliche Fensterlüftung mit hohen Luftwechselraten auf. Es ermöglicht den Benutzern der Räume den visuellen Kontakt zur Aussenwelt und reduziert die Raumtemperaturschwankungen mit einer thermisch aktiven Gebäudemasse. Durch die konsequente Optimierung der Fassade und ihre Abstimmung auf die dahinterliegenden Räume konnten beträchtliche Summen an Investitionskosten eingespart werden. Ebenso Energie für die Klimatisierung und mechanische Lüftung. Dank der grossflächigen Glasfassade kann im Winter durch die Sonneneinstrahlung der Heizenergiebedarf gesenkt werden.