Anna-Seiler-Haus, Inselspital Bern

Gemeinsam mit ASTOC und IAAG, freuen wir uns darauf, das neue Anna-Seiler-Haus nach 10 Jahren Planung und Bauzeit nun erstmals einer breiten Öffentlichkeit zu zeigen, bevor das neue Hauptgebäude des Inselspitals am 18. September 2023 in Betrieb geht. Dank seiner klaren Struktur mit zwei Haupter­schliessungskernen und den lichtdurchfluteten Innenhöfen, schafft das Gebäude bei Patienten und Besuchern eine angenehme Atmosphäre und gewährleistet eine einfache und sichere Orientierung auf allen Ebenen. Nun schlägt das neue Herzstück des Inselspitals schon bald für Bern. In der Skyline der Schweizer Hauptstadt ist es schon länger ein Fixpunkt.

Baustellenrundgang

Film der Inselgruppe

Virtueller Rundgang

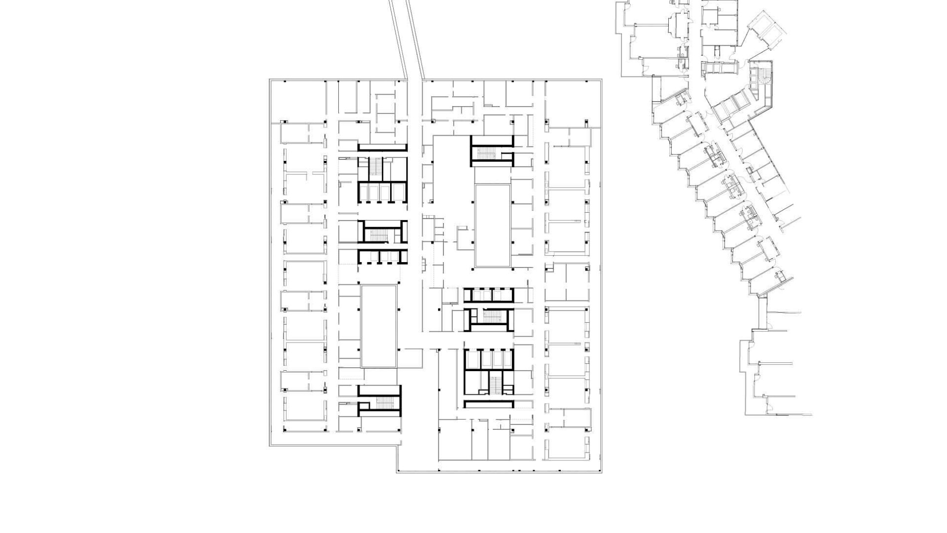
Das Gebäude gibt eine einfache Antwort auf eine komplexe Aufga­ben­­stellung. Dank der klaren Ge­bäudestruktur mit zwei Haupter­schliessungskernen und zwei Innenhöfen kann sich der Besucher bereits beim Eintreten in das Gebäude gut orientieren. Das Zentrum des Grundrisses wiederholt sich auf den meisten Geschossen und erleichtert so die Orien­tie­rung. Die gute Orientie­rung im Gebäude bleibt Haupt­thema und ist auf allen Ebenen gewähr­leistet.

Die Funktionsgeschosse bleiben dank der innen­liegenden Kerne in ihrer Nutzung flexibel. Rund 18 Meter tiefe Raumschichten entlang der süd­westlichen und nordöstlichen Aussen­fassade bieten ein Maximum an Flexibilität und lassen Spielraum für künftige Anpassungen. Das Tech­nikgeschoss oberhalb der Funktions­ge­schosse reduziert die Steigzonen­flächen, erhöht die Möglichkeit nachzurüsten und vereinfacht eine konsequente Systemtrennung.

In jedem Bettengeschoss gibt es vor den Fahr­stühlen einen grosszügigen An­kunfts­bereich mit Anmeldung, Auf­ent­halts­bereich und Aussen­raum mit wechselnden Perspektiven auf die Stadt Bern. Jeder Patient, Besucher und Mitar­beiter weiss zu jeder Zeit, wo er sich befindet. Alle Patienten­zimmer liegen an der Aussen­fassade und sind wohnlich gestaltet. Jeder Patient kann vom Bett aus durch die grossen Fenster nach aussen schauen, ist aber durch die Brüstungsbank vor Einblicken geschützt.

WettbewerbAitor Andueza García
Nick Gartenmann
Reto Giovanelli
Marcelina Hackiewicz
Christian Lasser
Donat Senn
PlanungStefan Burkhardt
Junior Ferreira
Nick Gartenmann
Reto Giovanelli
Marcelina Hackiewicz
Benz Hubler
Lucy Kilchenmann
Lia Kohler
Christian Lasser
Eleni Loukidou
Bruno Morais
Noé Müller
Antonio Russo
Florian Scheurer
Stefan Signer
Tossan Souchon
Christian Stettler
Sabine Uchenna
Nicole Ulmi
AuftraggeberInselspital Bern Universitätsspital
MandatGeneralplaner
Architektur/Gesamtleitung/
Bauleitung
GWJ Architektur
ASTOC Architects
IAAG Architekten
Zusammenarbeit ab 2018Archipel Generalplanung
KooperationKissling + Zbinden
dsp Ingenieure + Planer
Amstein + Walthert
Reflexion
Studio Banana
Bering
Toneatti Engineering
Lead Consultants
Gartenmann Engineering
H Plus S
HKG Engineering
David Bosshard Landschaft
Visu
Fotografie
Play-Time
HGEsch Photography

 

VerfahrenProjektwettbewerb 2014
1. Rang
SIA 416GF 82'000 m2
GV 333'000 m3
Termine2017 Baubeginn
2023 Bezug
Zertifikat1. Minergie P ECO Spital