Verwaltungsbau Liestal

«Zusammengefasst unter dem Begriff der Nachbarschaften sind Transparenz und Bürgernähe der kantonalen Verwaltung zentraler Entwurfsgedanke. Basierend auf der Idee, dass eine Verwaltung der Öffentlichkeit dient, soll ein grosszügiges Atrium als halböffentlicher Begegnungsort das Gebäude mit dem Verwaltungscampus, seinen Höfen und Grünräumen in einer Raumabfolge verknüpfen. Mitarbeitende sehen sich gegenseitig, das Gebäude ist in seiner Geschossigkeit als Ganzes erfahrbar, auch für die Bürger*innen, die im Erdgeschoss in das Atrium eintreten. Der kompakte fünfgeschossige Baukörper mit zentralem Atrium wird von Süd-Osten her erschlossen, Cafeteria und Mensa sind nach Nord-Westen zur Villa Scholer hin ausgerichtet.» (Auszug aus dem Jurybericht)

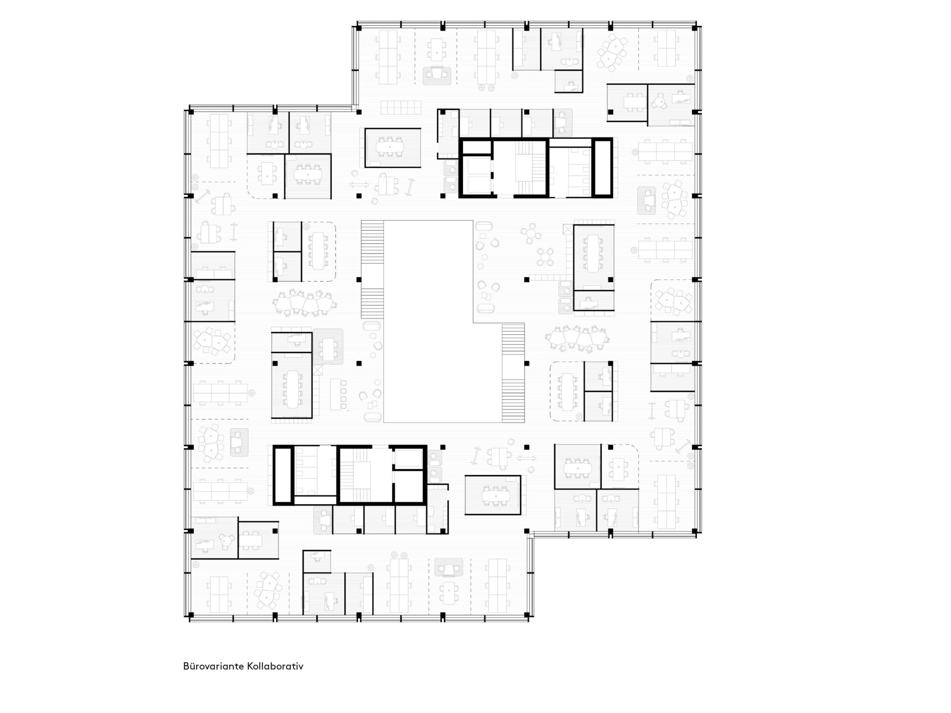
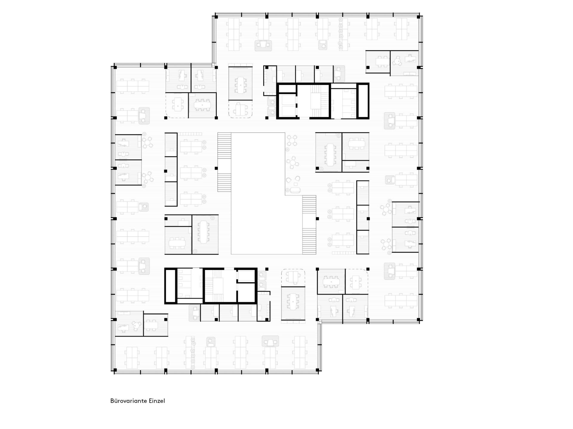
Damit im Laufe der Zeit auf neue Einflüsse reagiert werden kann, ist Flexibilität in der Nutzung des Gebäudes ausschlaggebend. Gestützt auf eine symmetrischen Grundstruktur ist der Innenraum modular gestaltbar. So können in Zukunft auch einzelne Geschosse vom Regelgeschoss abweichen oder einzelne Module ausgetauscht werden. Damit auch langfristig nachhaltig mit Ressourcen umgegangen werden kann, ist das Gebäude nach dem Motto Stärken-was-ist gestaltet. Der kompakte Grundriss hat den Vorteil, dass er nicht nur den Einsatz von Baumaterialien reduziert sondern auch einen grossen Teil der bestehenden Parklandschaft erhalten kann.

WettbewerbThomas Berger
Claudio Hollenstein
Antonia Immenkamp
Christian Lasser
Arif Sadek
Donat Senn
Michael Wyss
Elisa Vacca
AuftraggeberBau- und Umweltschutzdirektion Kanton Basel-Landschaft
ArchitekturARGE GWJ Architektur mit Studio Banana
KooperationSynaxis
Westpol Landschaft
Waldhauser + Hermann
Ing - Büro Riesen
Fux + Sarbach Engineering
Gartenmann Engineering
Wälchli Architekten
Play-Time 
VerfahrenSelektiver Projektwettbewerb 2023
SIA 416Arealfläche 4‘117 m2
GF 19‘191 m2
GV 73‘939 m3
Das einfache statische, und modulare Rahmensystem aus Holz definiert die Kubatur des Gebäudes und gleicht einem flexiblen Setzkasten für die Räume.
Übers «Customer Journey Mapping» lassen sich verschiedene Nutzungsverhalten im Gebäude plakativ durchspielen. Anhand des skizzierten Tagesablaufs der fiktiven, aber beispielhaften Personas Ana (städtische Angestellte) und Sam (Einwohner Liestals) können Wege und Gebäude einfach erlebbar gemacht werden.
Das Atrium als multifunktionaler Raum (Ausstellung, Erweiterung Konferenz, Events) mit direktem Zugang zur Aula, zum Konferenzzentrum und zur Cafeteria.
Ab dem 1. Obergeschoss erschliessen Balkone und Treppen vertikal die Bereiche für kommunikatives und informelles Arbeiten zweier Geschosse und schaffen so Blickbeziehungen und ein starkes Gefühl der Zugehörigkeit über verschiedene Abteilungen.