van Baerle Areal Münchenstein

Die prosperierende im Kanton Basel-Landschaft liegende Gemeinde Münchenstein profitiert von ihrer verkehrstechnisch optimalen Lage in unmittelbarer Nähe zur Stadt Basel. Mit über 12'000 EinwohnerInnen und 10'000 Arbeits­plätzen in über 900 Unternehmungen ist Münchenstein einer der bedeutendsten Wohn-, Arbeits- und Wirtschaftsstandorte des Kan­tons. Gemäss Entwicklungskonzept der Gemeinde Münchenstein ist eine massvolle Ent­wicklung bis ca. 2025 mit zusätzlichen 2'000 EinwohnerInnen anzustreben.

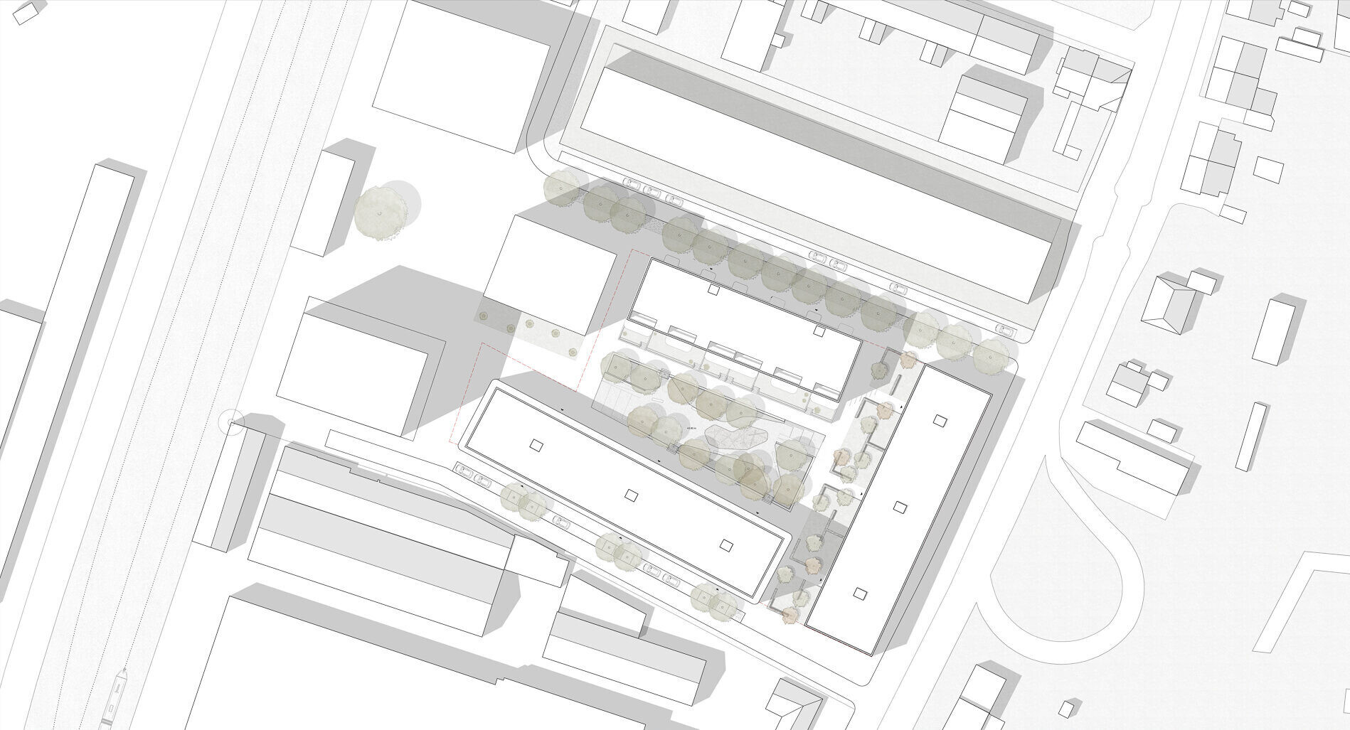
Durch die Neuausrichtung des Chemie­unter­nehmens vanBaerle AG wird in Münchenstein in den nächsten Jahren das rund 20'000 Quad­ratmeter grosse Firmenareal frei. Der Produkt­ions­standort der vanBaerle AG wird mittel­fristig verlegt und das Areal soll einer neuen Nutzung zugeführt werden, für dessen Transformations­­prozess sich die Immobilien­firma Halter AG verant­wortlich zeichnet. Das Areal liegt gut erschlossen in der Nähe des Bahnhofs Münchenstein. Ziel ist es, das Industrie­gebiet dereinst in ein Wohn­quartier mit zentrums­ähnlicher Funktion umzu­ge­stalten.

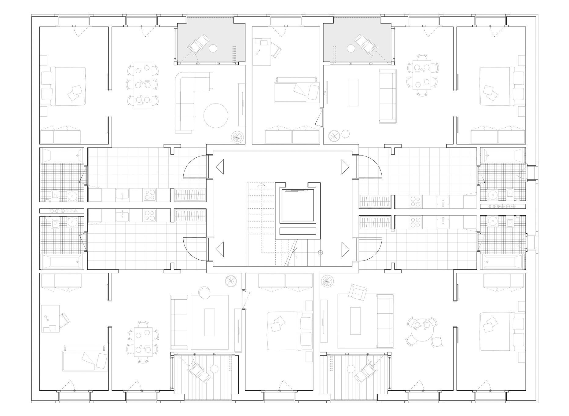
Dem Studienauftrag geht eine Development Phase vorher, worauf die 4 Baufelder für die Phase Design verschiedenen Teilnehmenden zu­ge­teilt wurden. «Der Entwurf von GWJ setzt es sich zum Ziel, drei Gebäude zu ent­wickeln, die eine gute Balance finden zwischen Eigen­stän­digkeit und Ver­wandtschaft. Insgesamt be­sticht der Bei­trag durch die grosse Breite und beachtliche Tiefe von schlüssigen Ant­worten.» (Jurybericht)

«Zum richtigen Zeitpunkt die richtigen Dinge zu tun, bedeutete hier – der Flughöhe entspre­chend – umfassend und phasengerecht, die nö­tigen Inhalte zu erarbeiten. Es ging also darum, die mehr oder weniger präzis vorgege­­benen Volumen, kombiniert mit einer Hand voll Re­geln, die programmatisch bereitgestellt wur­den, architektonisch vertieft weiter zu be­arbeiten. Es ging unter anderem darum, den architekto­nischen Ausdruck, die Anmutung und Physiognomie, die Plastizität der Körper, die Atmosphäre und Identität, die detaillierte landschafts­architektonische- und verkehrstechni­sche Ausgestaltung, eine Materialität und Tek­tonik, aber auch präzise Produkte- und Nutz­ungsvorstellungen zu erarbeiten.» (Jurybericht)

Neuartig dabei ist die fast ausschliess­liche Abgabe als 3D Modell. Die Frage, wie Quali­täten, Identitäten und Atmosphäre vermittelt werden können, ist dabei entscheidend.

 

StudienauftragSándor Kaszás
Christian Lasser
Michael Schär
Donat Senn
Elisa Taraglio
ProjektentwicklungHalter Entwicklungen
GrundeigentümerRietpark Immobilien
ArchitekturGWJ Architektur
KooperationDavid Bosshard Landschaft
Play-Time
VerfahrenStudienauftrag
1. Rang 2018
SIA 416GF 22'000 m2
GV 68'000 m3
RealisierungIn mehreren Etappen von 2021 bis 2027
Bericht zum Wettbewerbwww.architekturbasel.ch
Bericht Hochparterre 8/18