MFH Gerberngasse Bern

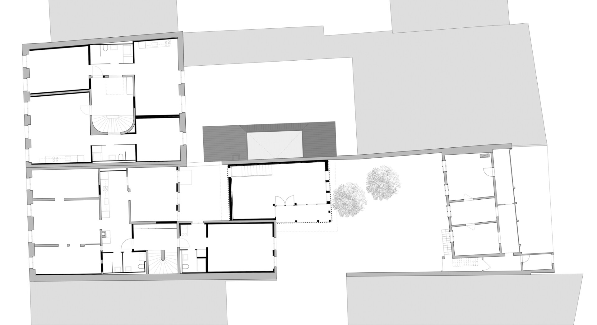
Stadtverdichtung gestern und heute: Bauen im Unesco Weltkulturerbe, Wohngebiet Matte: Dies bedeutet integraler Schutz der Gebäudesub­stanz und nicht nur Erhalt der Berner Sand­stein­fassade und der Lauben­gänge. Stadtverdichtung spielte be­reits im 19ten Jahr­hundert eine Rolle. Das zweigeschossige Haus Nummer 11 wurde abgerissen und als Neubau auf die Trauflinie von Nummer 13 und 15 erhöht.

Sanfte Sanierung: Die Läden im Erd­ge­schoss der Vorderhäuser bleiben erhalten. Darüber liegen 2,5 und 4-Zimmer Wohnungen sowie drei Studios. Ein 2-geschossiges Wohnate­lier ersetzt das Waschhaus im Hof. Die Fassadenfenster wer­den in den aufgearbeiteten Rahmen mit Isolier­glas wärmetechnisch verbessert. Küchen und Bäder werden komplett saniert und auf moderne Bedürfnisse abgestimmt.

GWJ respektiert den Bestand und macht ihn, wenn möglich haltbarer. So werden zum Beispiel die ehemali­gen unbehandelten Holzriemen­tannen­böden bei schlechter Substanz teilweise neu in Eiche ausgeführt.

Die Warmwasseraufbereitung und Heizung befindet sich nach drei Hochwasserkatastro­phen neu im Dach. Eine 30 Quadratmeter grosse Dachterrasse ist in die Dachland­schaft inte­griert und bietet einen phänomenalen Ausblick auf Berner Münster, Bärengraben und Nydegg­brücke.

 

Planung und AusführungMargrit Aebi
Sophie Bunge
Stefan Burkhardt
Regula Deutsch
Nick Gartenmann
Marcelina Hackiewicz
Daniel Meyer
Julian Nef
Sacha Stettler
Nicole Ulmi
AuftraggeberPrivate Bauherrschaft
ArchitekturGWJ Architektur
FotografieRob Lewis
DirektauftragUmbau
Bauen im Unesco Weltkulturerbe
SIA 416GF 6'227 m2 Bestand
GF 353 m2 Neubau
Termine2013 Baubeginn
2014/15 Bezug
Weiteres12 Wohneiheiten