Gangloff Areal Bern

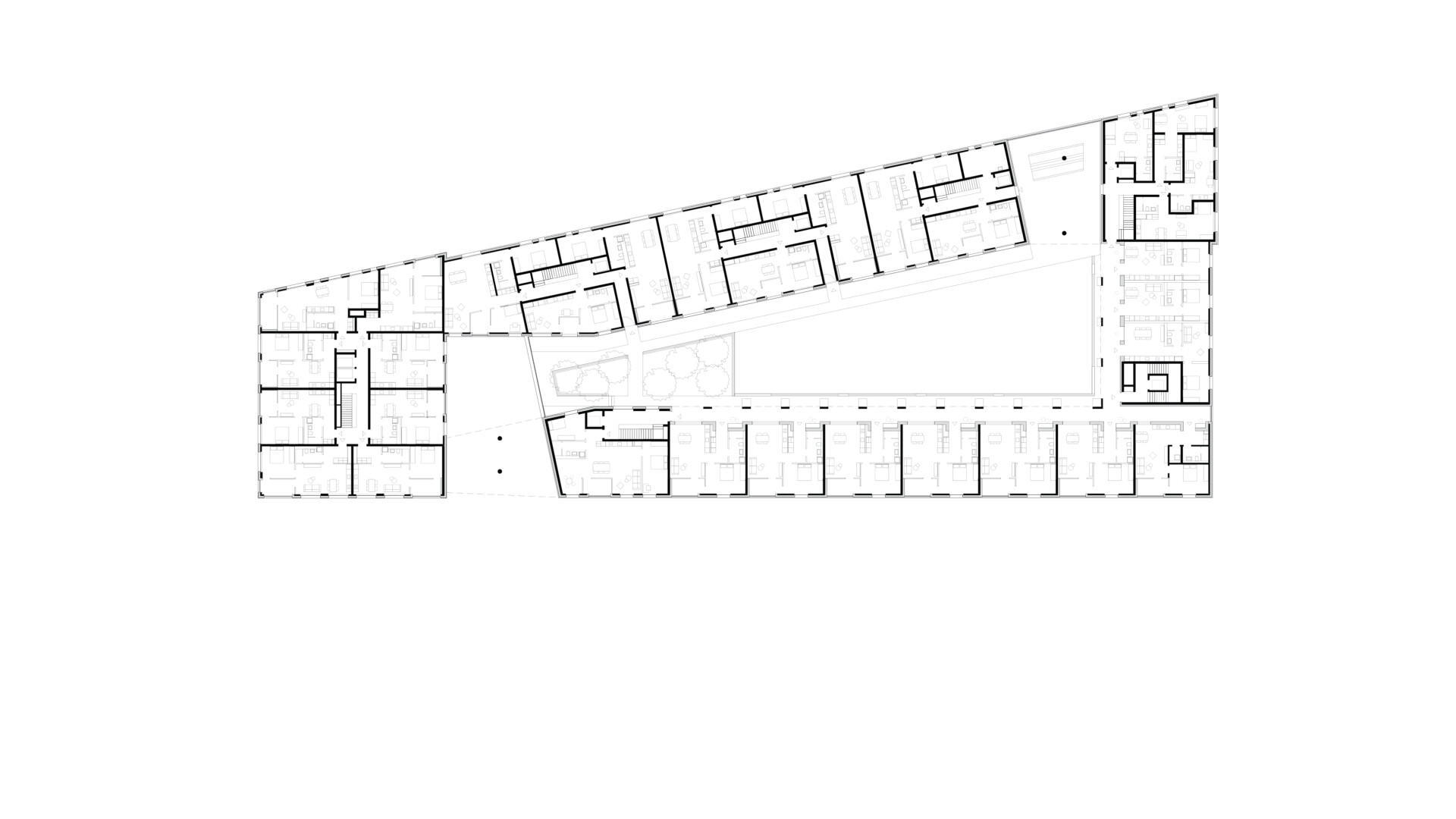
Der Ansatz erzeugt am westlichen Knoten mit einem möglichst hohen Volumen einen städte­­baulichen Akzent. An Stelle einer Block-Grossform wird eine gegliederte städte­bauliche Typologie vorgeschla­gen. Dadurch werden unter­schied­liche Wohnqualitäten und Wohn­ungstypen erzeugt. Mit einer klaren volumentri­schen Hierarchie der drei Gebäudeteile entsteht ein Akzent am nördlichen Rand. Die Grossform ist zum Südflügel hin absteigend und öffnet somit Raum für Aussicht und Besonnung. Der Akzentbau im Westen setzt sich von den beiden Flügeln ab und markiert das Baufeld. Das bauliche Volumen umringt einen attraktiv gestalteten und zentralen grünen Innenhof.

Durch die gezielt gegliederte städte­bauliche Typologie werden unter­schiedliche Wohn­qualitäten und Wohnungstypen erzeugt. Der urbane Ausdruck der Fassadengestaltung bindet das Gebäude in das heterogene Umfeld ein und liefert einen ersten Beitrag zur Identität. Die äussere Gestaltung öffnet sich dabei gezielt, um Ausblicke in die Nach­barschaft sicherzustellen.

Auf dem Niveau der Freiburgstrasse wird ein grosszügiger, flexibel unterteilbarer Raum für Verkaufs und Dienstleistungsnutzungen mit direktem Zugang zum Europaplatz­knoten angeordnet. Der Lagegunst für publikums­orientierte Nutzungen im Erdgeschoss kann man somit gerecht werden. Die Stützenfreiheit ist dem architektonischen Ausdruck, wie auch der Sicherheit im öffentlichen Raum geschuldet. Die Statik ist deshalb ab dem 1. Obergeschoss beim Riegel- und Winkelbau in Schotten­bauweise vorgesehen, einzig der Turm im Westen steht im Erdgeschoss fassadenbündig auf dem Terrain.

Die kompakten Wohnungen versprech­en auf­grund ihrer offenen Grundriss­gestaltung Flexibilität, um auf die individuellen Bedürfnisse der Bewohner zu reagieren. Mit dem Prinzip des «Durchwohnens» entsteht ein zen­traler Raum zum Kochen, Essen und Wohnen. Dieser er­möglicht ein licht­durchflutetes Raumerlebnis trotz kompakter Bauweise. Es wird ein Mix aus Studios, 2.5- und 3.5-Zimmer-Wohnungen realisiert.

 

PlanungTimo Andenmatten
Aitor Andueza García
Stefan Burkhardt
Maurizio Chirico
Veronika Cinkotsky
Jasmine Hadorn
Eva Herren
Christian Lasser
Daniel Meyer
Donat Senn
Nicole Ulmi
AuftraggeberGangloff Immobilien AG
TUPorr Suisse AG
ArchitekturGWJ Architektur
KooperationIngenta
Hartenbach + Wenger
Gartenmann Engineering
Eicher + Pauli
Toneatti Engineering
David Bosshard Landschaft
Roduner BSB
Play-Time
VerfahrenMachbarkeitsstudie 2012
SIA 4166'435 m2 Parzellengrösse
GF 16'140 m2
GF 13'400 m2 Wohnen
GF 2'740 m2 Dienstleistung
Termine2016 Richtprojekt
2020 Baubeginn
2022 Bezug