Bubenberg Bahnhof Zugang Bern

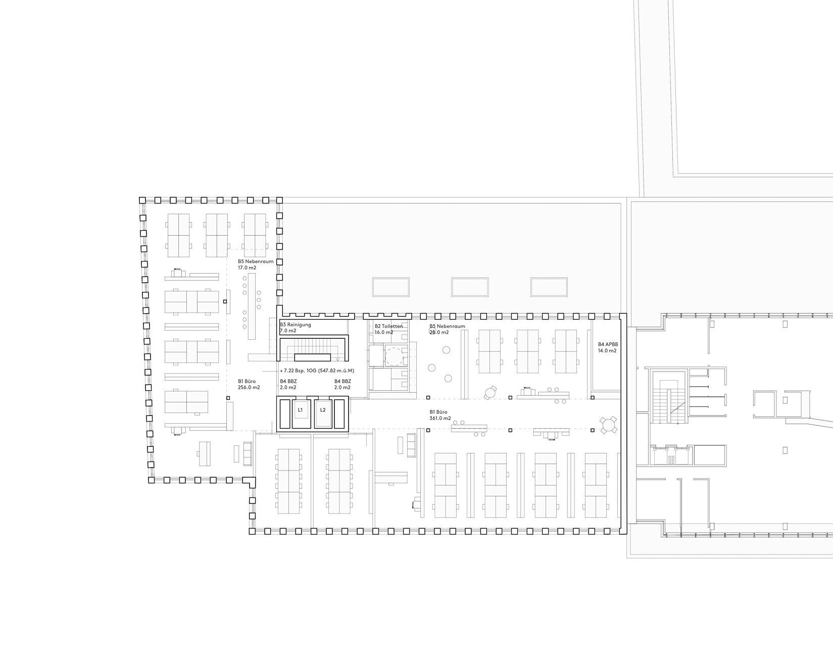
Die städtebauliche Situierung an der Kante des Unesco Weltkulturerbes und der Eingangs­situation zu Bern ver­langt nach Klärung. So reagiert das Projekt mit einer vornehmen Zu­rückhaltung und leichten Akzen­tu­ierung in seiner Gestalt, auf den für Bern identitäts­stiftenden Ort. Das Projekt adaptiert die be­stehende Silhouette, lässt die Volumetrie im städtischen Raum Fuss fassen und orientiert sich an den vorhandenen Qualitäten der historischen Bebauungen.

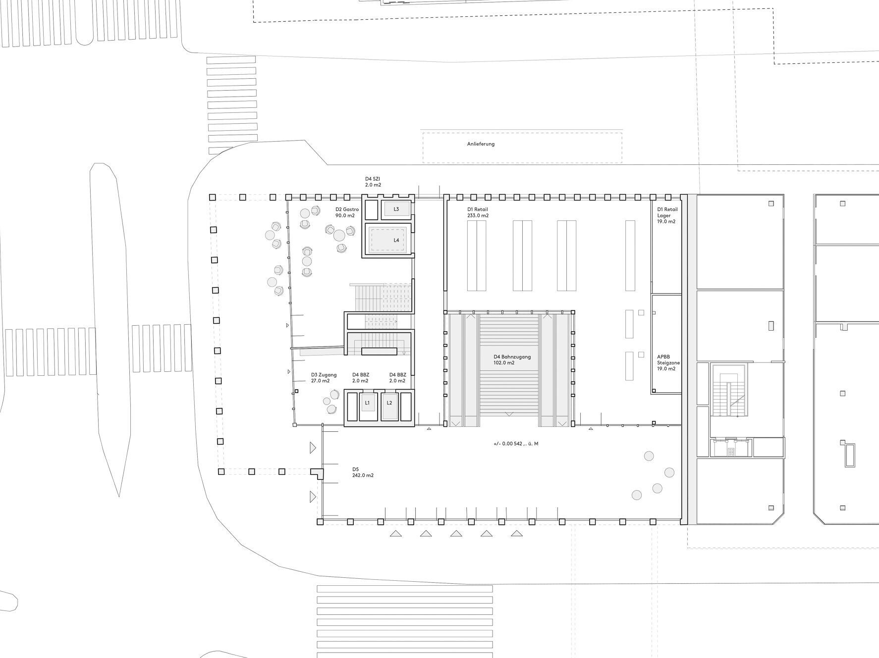
Durch die Ausformulierung des Erd­geschosses entstehen städtische Vorzonen, als Arkade an der Schan­zen­strasse und als Eingangshalle zum Bubenberg­platz. Der vorgelagerte Bereich klärt die Ecksituation zwi­schen Schanzenstrasse und Buben­bergplatz. Die Personenflüsse werden auf Ebene der Stadt gefasst und durch die äussere Schicht geführt.

Die Arkade führt den Fussweg entlang der Schanzenstrasse weiter, schafft eine autonome Adresse für die Büro­nutzung und bietet attrak­tive Retailflächen an. Die Eingangshalle holt die Personenströme ab und führt sie zum Bahnhof. Die vorgelagerte Zone zur Stadt schafft eine dem Ort angemessene Adresse. Die dem Ort angemessene Identität schafft einen Bezug zu den historischen Bebau­ungen im UNESCO Weltkulturerbe, bildet eine neue Adresse für die SBB und klärt die städtebauliche Situation.

 

WettbewerbJulien Brügger
Antonia Immenkamp
Maria Kouvari
Christian Lasser
Nordine Mahmoudi
Donat Senn
AuftraggeberSBB Immobilien
Development Zürich
MandatGeneralplanung
ArchitekturGWJ Architektur
KooperationKissling + Zbinden
Amstein + Walthert
Buri Müller
Play-Time
VerfahrenProjektwettbewerb
Generalplanung 2017
SIA 416GF 9'700 m2
GV 37'000 m3