Alti Sagi Innerberg

Gebäudetransformation: Der ehe­maligen Holzbaubetrieb bietet neuen Lebensraum für individuelle An­sprüche. Die Schreinereihalle wird zur flexiblen Wohnwerkstatt. Die gege­bene Gebäudetiefe von 20 Metern und die Raumhöhe von über 3 Metern liefern die typischen Merk­male der Wohneinheiten und stiften Identität.

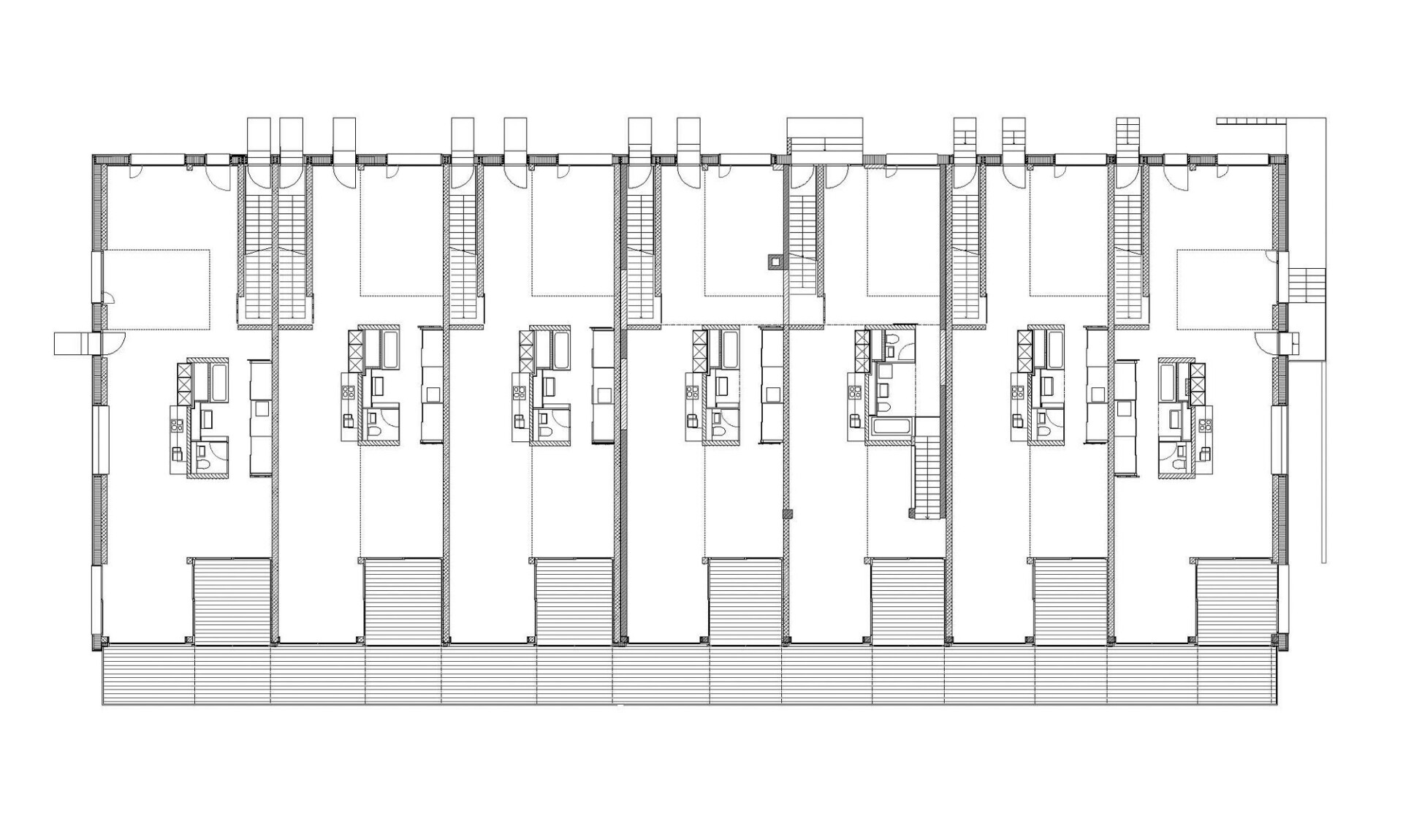
Flexible Lebensräume: Das simple Grundriss-Konzept bietet ungewohnte Freiheiten. Küche und Bad bilden zusammen den einzigen, festen Kern. Von der Loft bis zur Drei-Raum-Wohnung ist alles möglich. Ein Saisonzimmer erhöht die Raumflexibilität zusätzlich. Im Sommer Loggia, in der Übergangszeit Raumerweiterung und im Winter passive Energiegewinnung.

Minergie P Standard: Die konsequente System­trennung Rohbau-Haustechnik-­Ausbau bestimmt das Materialkonzept. Die Konstruk­tion bildet zugleich die Oberfläche. Woh­nungstrennwände und Geschossdecken in Beton sowie Fassade und Dach in unver­kleideter Holzrahmen­bauweise erzeugen die Raumstim­mung. Mit kontrollierter Wohnungs­lüftung, solarer Warmwasserauf­bereitung, kompaktem Volumen und passiver Sonnennutzung ist der Bedarf an zusätzlicher Energie sehr gering und der Minergie P Standard erreicht.

 

ProjektentwicklungPius Kästli
Donat Senn
PlanungPius Kästli
Fabio Quattroccchi
Bernhard Schori
Sacha Stettler
AuftraggeberU.C. Buchschacher
ArchitekturGWJ Architektur
KooperationNydegger + Finger
Belcom Elektro
Kurz Heizungen
Buchschacher B. + U.
Stuber + Cie.
Gartenmann Engineering
FotografieThomas Jantscher
DirektauftragTransformation 
Gewerbebetrieb in Wohnen
Projektentwicklung 2008
SIA 416GF 1'600 m2 Bestand
GF 1'000 m2 Neubau
GV 10'800 m3
Termine2009 Baubeginn
2011 Bezug
WeiteresMinergie P
14 Wohneinheiten